Deze website maakt gebruik van cookies

Deze website gebruikt cookies en verzamelt daarmee informatie over het gebruik van de website onder andere om deze te analyseren en te verbeteren en voor social media. Wil je meer weten over deze cookies, lees dan onze privacy disclaimer en de uitleg over cookies
Door hiernaast op "Akkoord" te drukken, geef je aan akkoord te zijn met het gebruik van cookies en het verzamelen van informatie aan de hand daarvan door ons en door derden. Wil je niet alle soorten cookies toestaan, klik dan op "Cookie instellingen aanpassen".

Bachweg 80
Terug naar overzicht

Bachweg 80, Amersfoort

Nadere informatie of een vrijblijvende bezichtiging aanvragen?
CODE: Grand cafe Randenbroek
Beschikbaar

Omschrijving

Deel deze pagina
Ter overname: Grand Café Randenbroek – Amersfoort

Een geweldige kans voor een nieuwe ondernemer! In de levendige wijk Randenbroek in Amersfoort staat dit gezellige café na 17 jaar eindelijk te koop. Het ligt direct aan het Euterpeplein, een druk en bekend plein met winkels en voorzieningen.

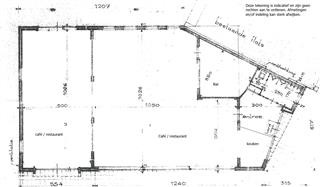
Indeling
Café: ca. 98 m²
Afsluitbare zaal: ca. 52 m²
Bar: ca. 9 m²
Keuken: ca. 6 m²
Entree: ca. 6 m²
Toiletten: ca. 7 m²
Totaal : ca. 178 m² v.v.o.

Het café voelt ruim en open aan dankzij de hoge plafonds die veel lucht en ruimte geven. De grote ramen zorgen voor veel lichtinval, waardoor het zowel overdag als ’s avonds een prettige zaak is om te verblijven. Binnen is het gezellig ingericht met grote tafels en voldoende stoelen: ideaal voor een praat- en spelletjescafé voor volwassenen.

Pluspunten
-Veel vaste gasten, op dit moment met name bezoekers met Turkse achtergrond.
-Hoge speelautomatenomzet.
-Sfeervolle zaal die apart afsluitbaar is, geschikt voor kleine groepen of activiteiten.
-Geen bruiloften of feesten (beperking geluid/parkeren), dus vooral gericht op een rustige en stabiele exploitatie.
-Geen terras, maar binnen voldoende zitplaatsen.

Huur en voorwaarden
-Huurcontract: ROZ 7:290 model, aangevuld met verhuurder specifieke voorwaarden (o.a. speelautomatenverplichting)
-Huurprijs: € 3.500,- per maand excl. BTW.
-Geen servicekosten.
-Huurtermijn: 5 + 5 jaar.
-Waarborgsom: 3 maanden huur + BTW.
-Vraagprijs exploitatie: nader overeen te komen.

Over de locatie
Amersfoort is een populaire en groeiende stad met een prachtig historisch centrum, veel toeristen en een sterk regionaal karakter. De wijk Randenbroek is een diverse buurt waar veel verschillende culturen samenkomen. Het Euterpeplein is het kloppend hart van de wijk, met dagelijkse aanloop van bezoekers en bewoners.

Waarom overnemen?
Na reeds 17 jaar stopt de huidige ondernemer vanwege zijn leeftijd. Dit maakt het een kans om een bestaand, gezellig café met goede naam en trouwe klantenkring voort te zetten.
Dit café is perfect voor een ondernemer die een toegankelijke buurtzaak wil runnen waar gasten zich thuis voelen. Dankzij de indeling, de lichte uitstraling en de gezellige inrichting is dit een plek met potentie voor de toekomst."

Neem voor meer informatie contact op met Alex Willemse via 06-50445472
Nadere informatie of een vrijblijvende bezichtiging aanvragen?