Deze website maakt gebruik van cookies

Deze website gebruikt cookies en verzamelt daarmee informatie over het gebruik van de website onder andere om deze te analyseren en te verbeteren en voor social media. Wil je meer weten over deze cookies, lees dan onze privacy disclaimer en de uitleg over cookies
Door hiernaast op "Akkoord" te drukken, geef je aan akkoord te zijn met het gebruik van cookies en het verzamelen van informatie aan de hand daarvan door ons en door derden. Wil je niet alle soorten cookies toestaan, klik dan op "Cookie instellingen aanpassen".

Weerdingerstraat 253a
Terug naar overzicht

Weerdingerstraat 253a, Emmen

Nadere informatie of een vrijblijvende bezichtiging aanvragen?
Verhuurd onder voorbehoud

Omschrijving

Deel deze pagina
Namens onze opdrachtgever mogen wij dit prachtig horecabedrijf in Emmen ter overname aanbieden.

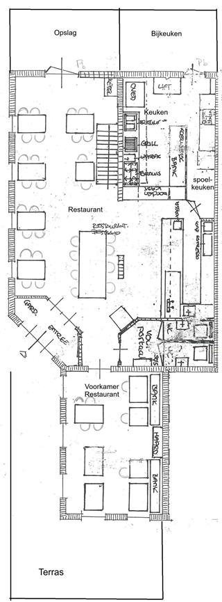
Het betreft een prachtig mooie uitgaansgelegenheid, bestaande uit restaurant met bar en voorkamer, terras, centrale keuken, spoelkeuken, afgesloten restaurant met bar op de 1e verdieping en opslagruimte op de begane grond.

De inventaris is compleet en modern. Het bedrijf is instap klaar. Er zijn geen verplichtingen t.o.v. leveranciers, er zijn wel enkele inventarisstukken op bruikleen.

De bedrijfsexploitatie wordt ter overname aangeboden. Het onroerend goed is een huurpand.

Emmen is een stad in de provincie Drenthe. Het is de grootste plaats in de gelijknamige gemeente Emmen. De gemeente tel ca. 110.000 inwoners en de plaats zelf ca. 60.000 inwoners.

Emmen, ook wel de Vlinderstad, een indirecte verwijzing naar het voormalige Noorder Dierenpark Emmen, dat in maart 2016 werd opgevolgd door Wildlands Adventure Zoo Emmen.

Zitplaatsen & Metrage:
Restaurant: ca. 60 zitplaatsen
Voorkamer: ca. 25 zitplaatsen
Terras: ca. 30 zitplaatsen
Besloten ruimte/zaal op 1e etage met bar: ca. 30 zitplaatsen
Vloeroppervlakte (vvo) ca. 165 m2
Terras ca. 25 m2

Ligging
Aan een van de toegangswegen naar het centrum van Emmen. Dit horecabedrijf is gelegen aan de levendige Weerdingerstraat ,
de belangrijke verbindingsroute waar veel bedrijven aan gevestigd zijn. Er is in de directe omgeving voldoende en gratis parkeergelegenheid.

Verplichtingen:
Er zijn geen (afname)verplichtingen jegens een brouwerij en/of andere leveranciers, wel bruikleen inventarisstukken.
Personeel overzicht op aanvraag verkrijgbaar.

Woonruimte: Er is geen woning aanwezig.

Maandag Gesloten
Dinsdag Gesloten
Woensdag Gesloten
Donderdag 17:00 t/m 22:00
Vrijdag 17:00 t/m 22:00
Zaterdag 17:00 t/m 22:00
Zondag 17:00 t/m 22:00

Huursom pand € 1990,- per maand
Vraagprijs exploitatie € 85.000,-

Heb je een passie voor de horeca en je eigen bedrijf wilt starten of uitbreiden, dan zou dit restaurant een interessante investering
kunnen zijn.

Voor bezichtigingsaanvraag of meer informatie bel dan met onze bedrijfsadviseurs:

Anton Zwart | T 06 109 06 891 | E a.zwart@klaassenbv.nl
Jan Elslo | T 06 135 80 117 | E j.elslo@klaassenbv.nl

Klaassen horecamakelaardij, Wiekenweg 56B, 3815KL Amersfoort

Nadere informatie of een vrijblijvende bezichtiging aanvragen?