Deze website maakt gebruik van cookies

Deze website gebruikt cookies en verzamelt daarmee informatie over het gebruik van de website onder andere om deze te analyseren en te verbeteren en voor social media. Wil je meer weten over deze cookies, lees dan onze privacy disclaimer en de uitleg over cookies
Door hiernaast op "Akkoord" te drukken, geef je aan akkoord te zijn met het gebruik van cookies en het verzamelen van informatie aan de hand daarvan door ons en door derden. Wil je niet alle soorten cookies toestaan, klik dan op "Cookie instellingen aanpassen".

Onderwijsboulevard  734
Terug naar overzicht

Onderwijsboulevard 734, 's-Hertogenbosch

Nadere informatie of een vrijblijvende bezichtiging aanvragen?
Beschikbaar

Omschrijving

Deel deze pagina
Namens onze opdrachtgever bieden wij deze casco commerciële ruimte te huur aan.
Het betreft een absolute top locatie in het hart van het Paleiskwartier.

Ligging
Het Paleiskwartier is een moderne stadswijk gelegen aan de westzijde van station ’s Hertogenbosch Centraal en direct grenzend aan het historische centrum van ’s-Hertogenbosch. De wijk kenmerkt zich door een mix van wonen, werken, studeren en recreëren, met een opvallende architectuur, hoogwaardige nieuwbouw, een centrale waterpartij en toegang tot stedelijke voorzieningen.

Omschrijving object
Het betreft een nieuwbouw casco commerciële ruimte die geschikt is voor diversen invullingen zoals
horeca, kantoor of medisch. De ruimte beschikt over hoge plafonds, een tweetal toegangsmogelijkheden en een hoogteverschil in de vloer, deelverhuur is hierdoor goed mogelijk.

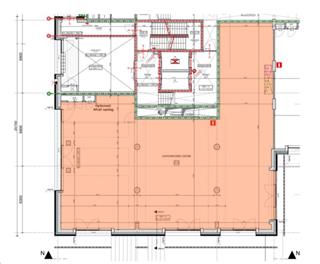
Metrage/capaciteit
De totale m² van het object bedragen 268 m.

Voor de plattegrond tekening wordt verwezen naar de foto’s.
Nadere informatie of een vrijblijvende bezichtiging aanvragen?